2005 W 11thSanta Ana, CA 92703
Due to the health concerns created by Coronavirus we are offering personal 1-1 online video walkthough tours where possible.




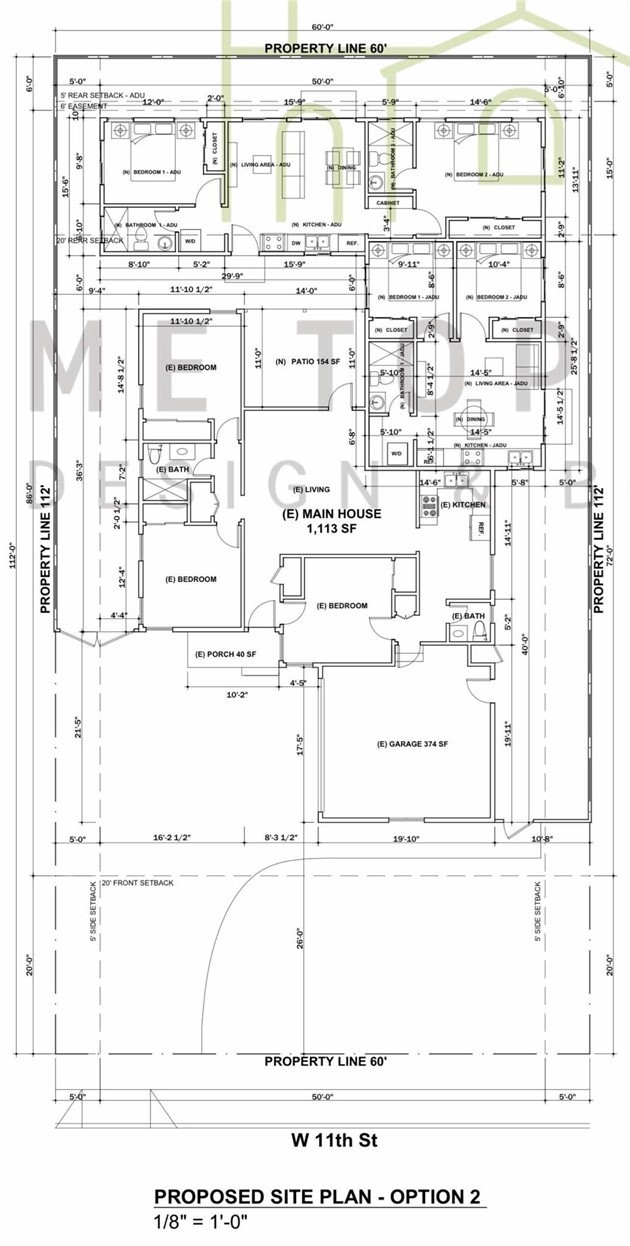
Welcome to 2005 W 11th Street, a beautifully maintained residence located in the heart of Santa Ana. This inviting home offers three bedrooms and two bathrooms, along with a spacious enclosed patio/bonus room, all within an approximately 1,112-square-foot floor plan. An attached two-car garage adds convenience, functionality, and additional storage. Situated on a generous 6,720-square-foot lot, the property features a large backyard ideal for entertaining, gardening, or future expansion. The seller currently holds permits to add two additional units, creating a rare and valuable opportunity for both homeowners and investors: Accessory Dwelling Unit (ADU): 748 square feet, featuring two bedrooms, two bathrooms, a full kitchen, breakfast nook, and living room. Junior ADU (JADU): 473 square feet, offering two bedrooms, one bathroom, a boutique kitchen, and a cozy living area. The main home is currently rented for $3,200 per month, allowing the new owner to collect immediate rental income throughout the construction process. The expansive driveway and attached garage provide ample parking and storage. Located in a quiet, friendly neighborhood, this home is conveniently close to shopping, dining, parks, and recreation. It is situated within the Santa Ana Unified School District and is within walking distance to Santa Ana College. Easy access to the I-5, 22, and 55 freeways makes commuting simple and efficient. With rising property values in Santa Ana, this property represents an outstanding opportunity to enjoy comfortable living while capitalizing on future growth and income potential. Don’t miss this move-in-ready gem in a desirable location. Schedule a private showing today and make 2005 W 11th Street yours.
| 3 months ago | Status changed to Active | |
| 3 months ago | Listing updated with changes from the MLS® | |
| 3 months ago | Price changed to $999,000 | |
| 4 months ago | Listing first seen on site |
This information is for your personal, non-commercial use and may not be used for any purpose other than to identify prospective properties you may be interested in purchasing. The display of MLS data is usually deemed reliable but is NOT guaranteed accurate by the MLS. Buyers are responsible for verifying the accuracy of all information and should investigate the data themselves or retain appropriate professionals. Information from sources other than the Listing Agent may have been included in the MLS data. Unless otherwise specified in writing, the Broker/Agent has not and will not verify any information obtained from other sources. The Broker/Agent providing the information contained herein may or may not have been the Listing and/or Selling Agent.
Did you know? You can invite friends and family to your search. They can join your search, rate and discuss listings with you.